札幌市中央区の「すすきの」にて、テナントビルを運営しています。旭観光ビル(合同会社エース)
Tel:011-521-1111
トップページ
Top
テナント物件
tenant
第2旭観光ビル
第3旭観光ビル
第6旭観光ビル
旭観光 New Gateビル
旭観光 麻生ビル
旭観光 麻生ANNEXビル
旭観光 澄川ビル
テナント空き物件
Rent
よくあるご質問
Question
会社概要
Company
お問い合わせ
Contact
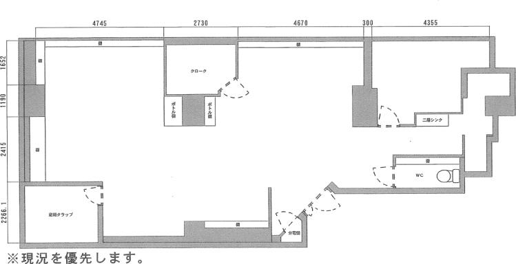
第6旭観光ビル 5階2タイプ
部屋番号
60502
坪数
38.00坪
前業態
アミューズメントバー
設備状況
空調セントラル
賃貸条件表 平面図 PDFファイル
PDFファイルを見る。
Copyright © 合同会社エース All rights Reserved.
^